すべての
写真を見る
15枚
物件No.70370 長野県飯田市中村
【2階部分】旭ヶ丘中学校近く 学習塾にいかがでしょうか
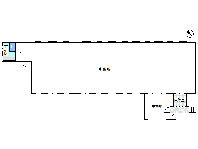
土地面積:㎡ / 坪 建物面積:192.86㎡ / 58.34坪
賃料月額:200,000円
この物件の所在地
この物件の諸元
| 物件種別 | テナント |
|---|---|
| 最適用途 | 事務所 |
| 物件番号 | 70370 |
| 取引態様 | 媒介 |
| 所在地 | 〒395-0156 長野県飯田市中村 |
| 賃料月額 | 200,000 円 |
| 仲介手数料(税込) | 200,000 円 |
| 現況 | 空 |
| 用途地域 | 指定なし |
| 交通 | 中村バス停まで徒歩3分 |
| 小学校区 | 伊賀良小学校 |
| 中学校区 | 緑ヶ丘中学校 |
| この物件に関して | 保障会社利用必須 |
| 建物用途種類 | 事務所・倉庫 |
|---|---|
| 築年月日 | 1982年05月01日 |
| 階部分(所在階) | 2 階部分 |
| 建物面積 | 192.86 m² |
| 建物面積坪 | 58.34 坪 |
| 構造 | 鉄骨造 |
| 駐車場 | 10 台 |
| 上水道 | 公営 引込み済 |
| 下水道 | 下水 引込み済 |
| 礼金/権利金 | 200,000 |
| 敷金金額(貸主へ) | 400,000 |
| 共益費 | 20,000 円 |
| 法令制限④ | 盛土規制法 |
| 備考 | ご希望によって内部の改装は応談。 敷地内の別棟2階部分(給湯有)ご希望により賃貸可能です。 |
|---|---|
| セールスポイント | 【2階部分】旭ヶ丘中学校近く 学習塾にいかがでしょうか |
物件 No.70370
長野県飯田市中村
この住宅の閲覧数
おすすめ情報
おすすめ情報







